La canasta EUROSCHOOL DOBLE BASKET se fabrica según reglamento y está diseñada para poder instalarse entre campos de basket contiguos sin necesidad de instalar dos canastas independientes, pudiéndose colocar en cualquier tipo de superficie exterior.
Estructura
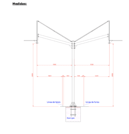
Se compone fundamentalmente de tres perfiles cuadrados de 100x100x3. El pie de la canasta queda fijo al suelo mediante una placa y 4 cartabones de refuerzo. La placa se atornilla al anclaje de la canasta, suministrado por Euronix, permitiendo la fijación de la canasta y asegurando la estabilidad y rigidez de la estructura.
Los brazos de la canasta se unen al pie, a través de una unión atornillada entre sí, abrazando el pie; permitiendo así la regulación en altura y aumentando la resistencia de la unión.
Sistema estabilizador de los marcos
Los marcos de la canasta quedan totalmente estabilizados mediante dos rigidizadores (cada uno) formados por dos tubos telescópicos, que unen el perfil de la estructura con el marco, regulándose para garantizar 100% la rectitud del tablero, obteniendo así, la perpendicularidad deseada de juego con respecto al suelo.
Marcos canasta
Los marcos de la canasta cumple las dimensiones de 1800mm.x1050mm,según normativa. Queda unidos a los brazos de la canasta mediante una unión atornillada. A los marcos se sueldan dos angulares por la parte de atrás para poder atornillar los rigidizadores.
Además, a los marcos de la canasta se les coloca los aros con las redes, totalmente normalizados.
Materiales:
- Los perfiles, pletinas y el aro son de Acero S235 JR y S275 JR.
- Tornillería cincada (Zn) Calidad 8.8
- La red es de fibra sintética o natural.

 TRAMPOLÍN PLUS
TRAMPOLÍN PLUS						





 
				





 1.png
1.png 
				 
				 
				 
				 
				 
				 
				