La canasta EUROSCHOOL MINIBASKET se fabrica según reglamento y están diseñadas para poder instalarse en cualquier tipo de superficie exterior.
Estructura
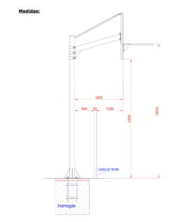
Se compone fundamentalmente de dos perfiles cuadrados de 100x100x3. El pie de la canasta queda fijo al suelo mediante una placa y 4 cartabones de refuerzo.
La placa se atornilla al anclaje de la canasta, suministrado por Euronix, permitiendo la fijación de la canasta y asegurando la estabilidad y rigidez de la estructura.
El brazo de la canasta se une al pie, a través de una unión atornillada, mediante una “U” conformada de acero que abrocha al pie en las tres caras del perfil; permitiendo así la regulación en altura y aumentando la resistencia de la unión.
Sistema estabilizador del marco
El marco de la canasta queda totalmente estabilizado mediante dos rigidizadores formados por dos tubos telescópicos cada uno, que unen el perfil de la estructura con el marco, regulándose para garantizar 100% la rectitud del tablero, obteniendo así, la perpendicularidad deseada de juego con respecto al suelo.
Marco canasta
El marco de la canasta cumple las dimensiones de 1200mm.x900mm, según normativa. Queda unido al brazo de la canasta mediante una unión atornillada.
Al marco se sueldan dos angulares por la parte de atrás asegurando, para poder atornillar los rigidizadores.
Además, al marco de la canasta se le coloca el aro con la red, totalmente normalizados.
Materiales:
- Los perfiles, pletinas y el aro son de Acero S235 JR y S275 JR.
- Tornillería cincada (Zn) Calidad 8.8
- La red es de fibra sintética o natural.

 JUEGO DE 2 CANASTAS BALONCESTO DELUXE MONOTUBO TUBO 100 TRASLADABLE 2 RUEDAS CON CARRO  -SIN TABLERO, ARO
JUEGO DE 2 CANASTAS BALONCESTO DELUXE MONOTUBO TUBO 100 TRASLADABLE 2 RUEDAS CON CARRO  -SIN TABLERO, ARO						





 
				





 
				 
				 
				 
				 
				 
				 
				